Listed by Smith Macdonald Group of Coldwell Banker Carlson Real Estate (802-253-7358)

Listing Sold by Vermont Life Realtors
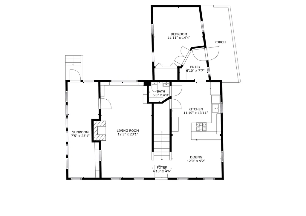
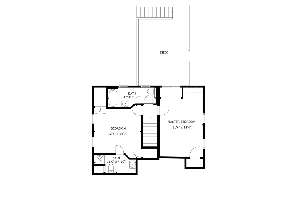
Quintessential Vermont farmhouse primely located in the heart of Stowe's Moscow neighborhood. This lovely lot offers views of Mansfield and the Worcester Range, an open sunny lawn, established gardens with berry bushes, and a farm stand. Enter the home to a renovated, bright kitchen finished in 2018 with plenty of storage. The center island lends itself to feeding friends and family before a day on the ski hill. There is tons of light throughout this home, with an easy open floor plan flowing from the kitchen, dining, to living. The living room is anchored by a decorative mantel and woodstove that efficiently heats the home on cold winter days. Combine this with solar power you will stay cozy all winter long. Enjoy large windows looking out to the Worcesters and built-ins to help keep you organized. Step out to the 3 season porch, perfect for extra living and dining space June to Oct. Ascend the newly finished stairs to find the master bedroom with a large walk-in closet, home office nook, & large sliders out to a roof deck; perfect for watching the sunrise with a warm cup of coffee. The second floor offers 2 bathrooms allowing each bedroom their own. The second bedroom has 2 large closets and an ensuite bath. Guests find comfort and privacy in the third bedroom off the main entrance on the first level. Walk across the yard to a barn perfect for a workshop, studio, or extra playroom. Minutes to downtown Stowe Village, Stowe Mt., restaurants, shopping, and close to 89.

Listing Tools (detailViewNewGen)

Property Details of 117 Adams Mill Road

Property Details

Interior Features

Exterior Features

Utilities and Appliances

Community

Other Details

Map Location

Broker Reciprocity 

Copyright 2025 PrimeMLS, Inc. All rights reserved. This information is deemed reliable, but not guaranteed. The data relating to real estate displayed on this display comes in part from the IDX Program of PrimeMLS. The information being provided is for consumers’ personal, non-commercial use and may not be used for any purpose other than to identify prospective properties consumers may be interested in purchasing. Data last updated November 9, 2025 8:53 AM EST

 

Hi there! How can we help you?

Contact us using the form below or give us a call.

Send Us A Message:

I agree to receive marketing and customer service calls and text messages from Josiah Allen Real Estate. To opt out, you can reply 'stop' at any time or click the unsubscribe link in the emails. Consent is not a condition of purchase. Msg/data rates may apply. Msg frequency varies. Privacy Policy.

Do not fill in this field:

This site is protected by reCAPTCHA and the Google Privacy Policy and Terms of Service apply.